Sesja nr XXVIII

UCHWAŁA NR XXVIII/269/08 RADY MIEJSKIEJ W GRYFINIE z dnia 17 lipca 2008 r. w sprawie nadania nazwy urzędowej ulicy, położonej w obrębie ewidencyjnym nr 4 miasta Gryfino.

UCHWAŁA NR XXVIII/269/08
RADY MIEJSKIEJ W GRYFINIE
z dnia 17 lipca 2008 r.


w sprawie nadania nazwy urzędowej ulicy, położonej w obrębie ewidencyjnym  nr 4 miasta Gryfino

Na podstawie art.18 ust.2 pkt 13 ustawy z dnia 8 marca 1990r.o samorządzie gminnym (Dz.U.z 2001r. Nr 142, poz.1591; z 2002r. Nr 23, poz.220, Nr 62, poz.558, Nr 113, poz.984, Nr 153, poz.1271, Nr 214, poz.1806; z 2003r. Nr 80, poz.717,  Nr 162, poz.1568; z 2004r. Nr 102, poz. 1055, Nr 116, poz.1203, Nr 214, poz.1806; z 2005 r. Nr 172, poz. 1441, Nr 175, poz. 1457; z 2006 r. Nr 17, poz. 128, Nr 181, poz. 1337; z 2007 r. Nr 48, poz. 327, Nr 138, poz. 974, Nr 173, poz. 1218) uchwala się, co następuje:

§ 1.

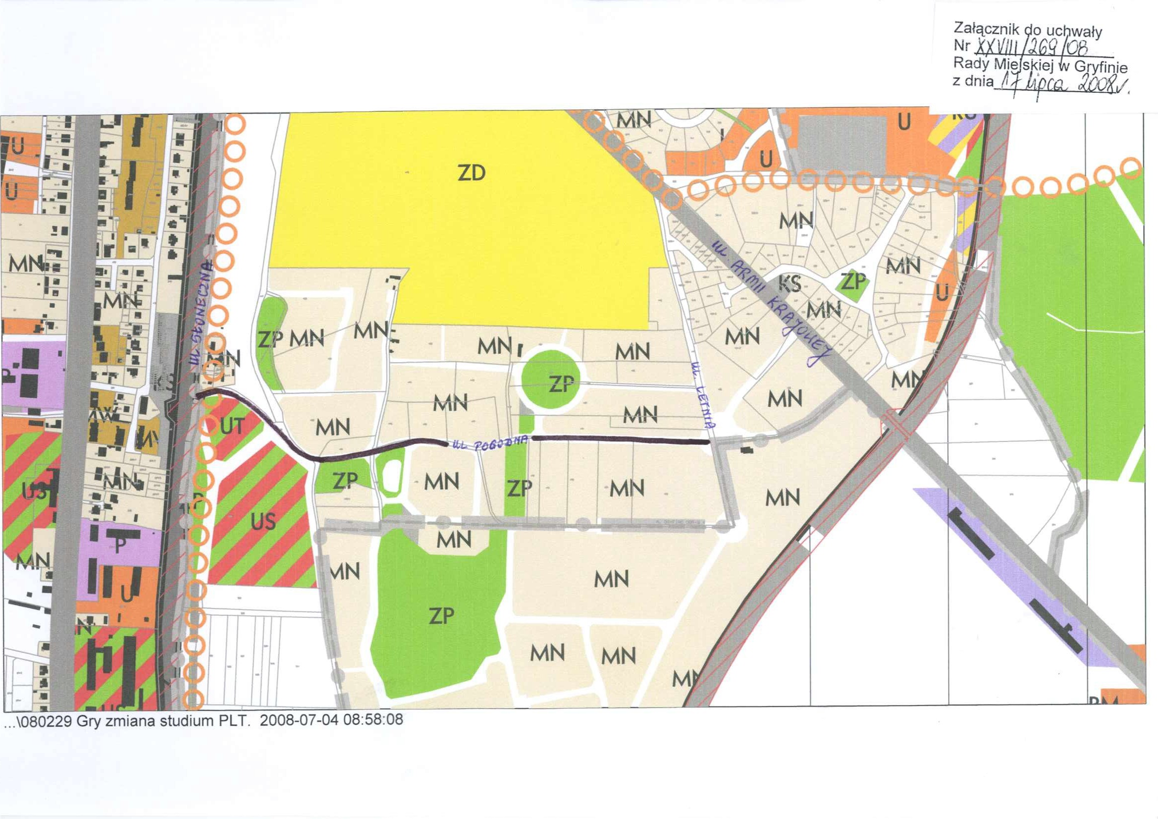
  1. Nadaje się nowoprojektowanej ulicy, położonej w obrębie ewidencyjnym nr 4 miasta Gryfino, oznaczonej w miejscowym planie zagospodarowania przestrzennego – rejon ul. Armii Krajowej, symbolami KL i KD, rozpoczynającej się od ulicy Letniej, biegnącej w kierunku zachodnim i łączącej się z ulicą Słoneczną, nazwę urzędową - ul. „Pogodna”.
  2. Przebieg i położenie nowoprojektowanej ulicy szczegółowo określa załącznik graficzny.

§ 2. Wykonanie uchwały powierza się Burmistrzowi Miasta i Gminy Gryfino.

§ 3. Uchwała wchodzi w życie z dniem podjęcia.

 

PRZEWODNICZĄCY RADY

Mieczysław Sawaryn

 

Uzasadnienie

Zgodnie z ustaleniami miejscowego planu zagospodarowania przestrzennego obowiązującego dla tego terenu, obsługa komunikacyjna działek przeznaczonych pod zabudowę mieszkaniową jednorodzinną obowiązuje z dróg oznaczonych symbolami KL – ulica lokalna i KD – ulica dojazdowa.
Właścicielem drogi oznaczonej nr 478 o pow. 4217 m2 oraz 488/11 o pow. 952 m2, położonej w obrębie ewidencyjnym nr 4 miasta Gryfino jest Gmina Gryfino.
Obecnie właściciele terenów położonych przy przedmiotowej drodze dokonują podziałów geodezyjnych gruntów a nabywcy poszczególnych działek przystępują do realizacji zabudowy mieszkaniowej. Nadanie ulicy nazwy umożliwi ustalanie numerów porządkowych nieruchomości do celów adresowych i meldunkowych.
Ponieważ ulica ta łączy ulicę Letnią z ulicą Słoneczną, zasadne jest nadanie nazwy zbliżonej do istniejących.
Proponuję, nadać nowej ulicy nazwę „ul. Pogodna”.

Sporządziła:
J. Woldańska