UCHWAŁA Nr VII/102/03
RADY MIEJSKIEJ W GRYFINIE
z dnia 24 kwietnia 2003 r.
w sprawie uchwalenia zmiany w planie ogólnym zagospodarowania przestrzennego miasta i gminy Gryfino w miejscowości Wirów.
Na podstawie art. 18 ust. 2 pkt 5 ustawy z dnia 8 marca 1990 r. o samorządzie gminnym (tekst jednolity : Dz. U. z 2001 r. Nr 142 poz. 1591; z 2002 r. Nr 23 poz. 220, Nr 62 poz. 558, Nr 113 poz. 984, Nr 214 poz. 1806) oraz art. 26 ustawy z dnia 7 lipca 1994 r. o zagospodarowaniu przestrzennym (tekst jednolity : Dz. U. z 1999 r. Nr 15 poz. 139; zmiana : Dz. U. z 1999 r. Nr 41 poz. 412, Nr 111 poz. 1279; z 2000 r. Nr 12 poz. 136, Nr 109 poz. 1157, Nr 120 poz. 1268; z 2001 r. Nr 5 poz. 42; Nr 14 poz. 124, Nr 100 poz. 1085, Nr 115 poz. 1229, Nr 154 poz. 1804; z 2002 r. Nr 25 poz. 253, Nr 113 poz. 984, Nr 130 poz. 1112) uchwala się co następuje :
Rozdział 1
USTALENIA OGÓLNE
§ 1. Zgodnie z uchwałą nr XLVII/595/02 z dnia 27 czerwca 2002 r. uchwala się zmianę w planie ogólnym zagospodarowania przestrzennego miasta i gminy Gryfino zatwierdzonym uchwałą Nr XIII/90/90 Rady Narodowej w Gryfinie z dnia 26 kwietnia 1990r. (publikowaną w Dzienniku Urzędowym Województwa Szczecińskiego nr 14 poz. 204 z dnia 2 maja 1990 r.).
§ 2.
-
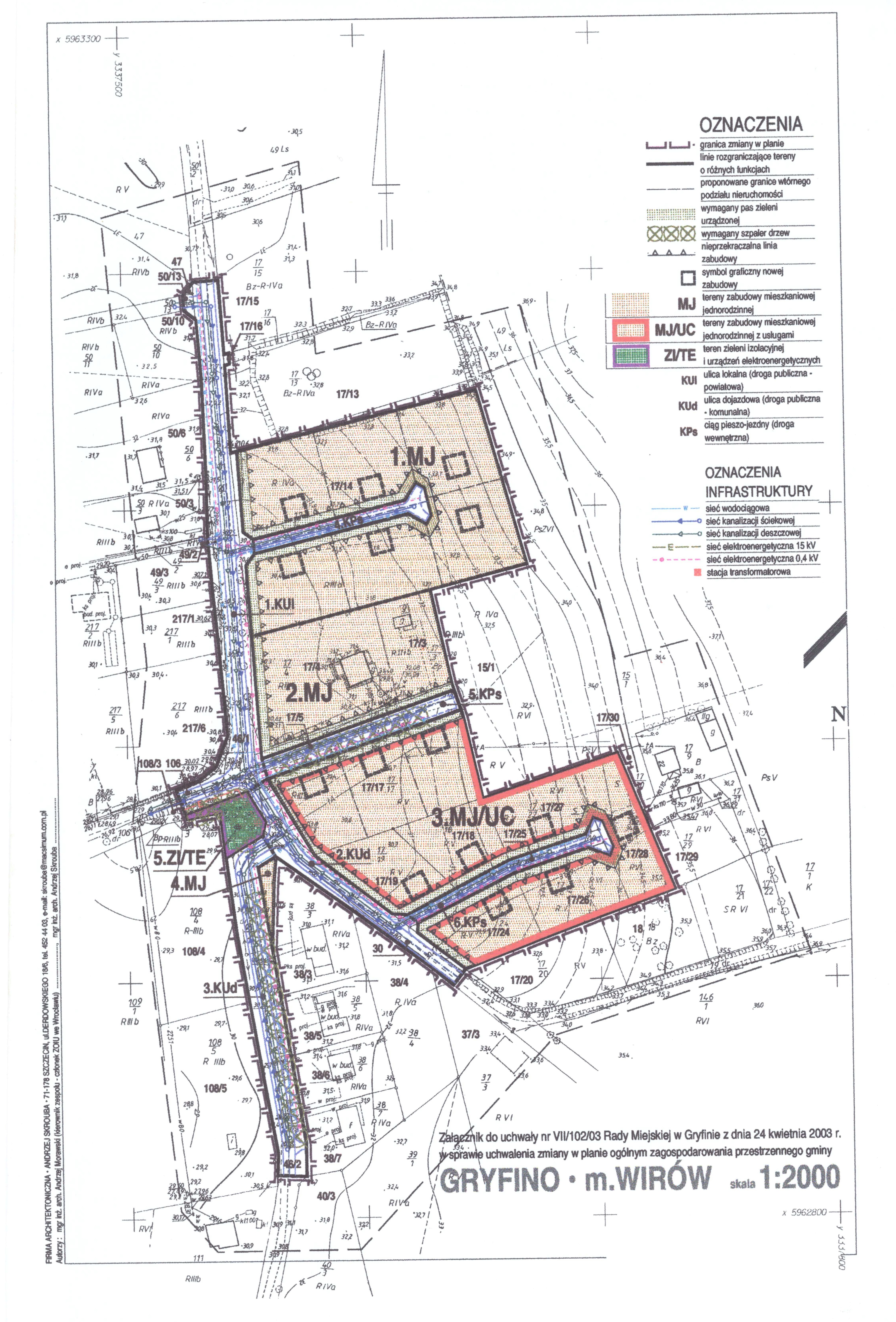
Zmiana w planie obejmuje obszar położony w miejscowości Wirów, w tym obejmuje w całości działki nr 17/3, 17/4, 17/5, 17/14, 17/17, 17/18, 17/19, 17/24, 17/25, 17/26, 17/27 i 17/28 oraz w części działki nr 17/16, 30, 46/1, 46/2, 47, 50/10, 50/13 i 106 - o łącznej powierzchni 3,0644 ha.
-
Granice zmiany w planie wyznaczają: od wschodu - wschodnie granice działek nr 17/3, 17/5, 17/17 i 17/28; od południa - południowe granice działek nr 17/24, 17/26, 17/28 i 30; od zachodu - zachodnie granice działek nr 46/1 i 46/2; od północy - północne granice działek nr 17/14, 17/27 i 17/28 i zostały oznaczone na rysunku planu w skali 1:1000 stanowiącym załącznik do niniejszej uchwały (rysunek planu 1:2000)
-
Przedmiotem zmiany w planie jest wprowadzenie funkcji mieszkaniowej jednorodzinnej z usługami, w tym z usługami handlowymi, gastronomicznymi, biurowymi i ochrony zdrowia.
Rozdział 2
PRZEZNACZENIE TERENÓW i ZASADY ICH ZAGOSPODAROWANIA
§ 3. Ustalenia niniejszego planu w zakresie przeznaczenia poszczególnych terenów funkcjonalnych :
-
1.MJ zabudowa mieszkaniowa jednorodzinna § 5
-
2.MJ zabudowa mieszkaniowa jednorodzinna § 5
-
3.MJ/UC zabudowa mieszkaniowa jednorodzinna (MJ), usługi komercyjne (UC) § 6
-
4.MJ zabudowa mieszkaniowa jednorodzinna § 5
-
5.ZI/TE zieleń izolacyjna (ZI), urządzenia elektroenergetyczne - stacja transformatorowa (TE) § 7
-
1.KUl droga publiczna (ulica lokalna) § 10
-
2.KUd droga publiczna (ulica dojazdowa) § 10
-
3.KUd droga publiczna (ulica dojazdowa) § 10
-
4.KPs droga wewnętrzna (ciąg pieszojezdny) § 10
-
5.KPs droga publiczna (ciąg pieszojezdny) § 10
-
6.KPs droga wewnętrzna (ciąg pieszojezdny) § 10
§ 4. Ilekroć w uchwale jest mowa o:
-
dachach stromych - rozumie się przez to zadaszenie zabudowy dachami symetrycznymi, dwuspadowymi lub wielospadowymi o nachyleniu połaci od 30° do 50°,
-
ilości kondygnacji - rozumie się przez to ilość wszystkich kondygnacji nadziemnych obiektu, łącznie z kondygnacjami usytuowanymi w poddaszu, przy czym najwyższa kondygnacja może być usytuowana wyłącznie w poddaszu,
-
intensywności zabudowy - rozumie się przez to stosunek sumy powierzchni całkowitych kondygnacji nadziemnych wszystkich obiektów istniejących i projektowanych na danym terenie funkcjonalnym oznaczonym w planie (po obrysie zewnętrznym tych obiektów) - do powierzchni tego terenu,
-
maksymalnej powierzchni zabudowy - rozumie się przez to stosunek sumy powierzchni zabudowy wszystkich obiektów istniejących i projektowanych na danym terenie funkcjonalnym oznaczonym w planie - do powierzchni tego terenu,
-
wysokości zabudowy - rozumie się przez to wymiar liczony od poziomu terenu przy najniżej położonym wejściu do obiektu do najwyższej położonej krawędzi dachu (kalenicy) lub zbiegu połaci dachowych,
-
zieleni urządzonej - rozumie się przez to trawnik lub kwietnik uzupełniony bylinami, krzewami i drzewami, a rodzaj i kompozycja roślinności nie wynika wyłącznie z jej naturalnej wegetacji.
§ 5.
-
Tereny oznaczone na rysunku planu symbolami 1.MJ, 2.MJ i 4.MJ o łącznej powierzchni 1,2191 ha przeznacza się pod zabudowę mieszkaniową jednorodzinną, w tym ustala się wspólne funkcjonowanie terenu oznaczonego symbolem 4.MJ z działką nr 38/3 położoną poza granicą zmiany w planie.
-
Na terenie oznaczonym symbolem 2.MJ dopuszcza się lokalizację funkcji rekreacji indywidualnej.
-
Wprowadza się zakaz :
-
lokalizacji garaży blaszanych i obiektów o charakterze kontenerowym,
-
w liniach rozgraniczających ulic - wykonywania ogrodzeń z prefabrykowanych elementów betonowych, a także o wysokości przekraczającej 1,7 m.
-
Na terenach oznaczonych symbolami 1.MJ i 2.MJ ustala się nieprzekraczalne linie zabudowy :
-
według rysunku planu - od drogi powiatowej oznaczonej na rysunku planu symbolem 1.KUl,
-
3,5 m - od linii rozgraniczających ciągów pieszojezdnych oznaczonych symbolami 4.KPs i 5.KPs.
-
Zabudowa powinna odpowiadać niżej wymienionym warunkom :
-
wysokość zabudowy nie może przekraczać - 10 m,
-
ilość kondygnacji nie może przekraczać dwóch,
-
intensywność zabudowy nie może przekraczać wartości - 0,35,
-
maksymalna powierzchnia zabudowy nie może przekraczać - 25 %,
-
w zwieńczeniach zabudowy należy stosować dachy strome z pokryciem ceramicznym, cementowym barwionym lub "gontem bitumicznym",
-
usytuowanie zabudowy nie może naruszać nieprzekraczalnych linii zabudowy - z wyłączeniem kondygnacji podziemnych, wykuszy, zadaszonych wejść do budynków i tarasów otwartych.
-
W zagospodarowaniu działki budowlanej, powierzchnia biologicznie czynna powinna zajmować co najmniej 50 % powierzchni tej działki, w tym pas terenu o szerokości minimum 3 m wzdłuż granic działek przylegających do ulic powinien być przeznaczony na zieleń urządzoną.
§ 6.
-
Teren oznaczony na rysunku planu symbolem 3.MJ/UC o powierzchni 0,9926 ha przeznacza się pod zabudowę mieszkaniową jednorodzinną - jako funkcję podstawową oraz przeznacza się pod usługi komercyjne (handlowe, gastronomiczne, biurowe i ochrony zdrowia) - jako funkcję uzupełniającą nie przekraczającą 30 % powierzchni użytkowej funkcji podstawowej.
-
Wprowadza się zakaz :
-
lokalizacji garaży blaszanych i obiektów o charakterze kontenerowym,
-
w liniach rozgraniczających ulic - wykonywania ogrodzeń z prefabrykowanych elementów betonowych, a także o wysokości przekraczającej 1,7 m.
-
Ustala się nieprzekraczalne linie zabudowy :
-
według rysunku planu - od drogi gminnej oznaczonej na rysunku planu symbolem 2.KUd,
-
3,5 m - od linii rozgraniczającej ciąg pieszojezdny oznaczony symbolem 6.KPs.
-
W granicach terenu należy zapewnić miejsca postojowe dla samochodów osobowych w ilości pokrywającej potrzeby, w tym :
-
dla lokali usługowych - 1 miejsce postojowe na każde 50 m2 powierzchni użytkowej,
-
dla części mieszkaniowej - 1 miejsce postojowe na każde mieszkanie.
-
Zabudowa powinna odpowiadać niżej wymienionym warunkom :
-
wysokość zabudowy nie może przekraczać - 10 m,
-
ilość kondygnacji nie może przekraczać dwóch,
-
intensywność zabudowy nie może przekraczać wartości - 0,40,
-
maksymalna powierzchnia zabudowy nie może przekraczać - 30 %,
-
w zwieńczeniach nowej zabudowy należy stosować dachy strome z pokryciem ceramicznym, cementowym barwionym lub "gontem bitumicznym",
-
usytuowanie zabudowy nie może naruszać nieprzekraczalnych linii zabudowy - z wyłączeniem kondygnacji podziemnych, wykuszy, zadaszonych wejść do budynków i tarasów otwartych.
-
W zagospodarowaniu działki budowlanej, powierzchnia biologicznie czynna powinna zajmować co najmniej 50 % powierzchni tej działki, w tym pas terenu o szerokości minimum 3 m wzdłuż granic działek przylegających do ulic powinien być przeznaczony na zieleń urządzoną.
§ 7.
-
Teren oznaczony na rysunku planu symbolem 5.ZI/TE o powierzchni 0,0399 ha przeznacza się pod zieleń izolacyjną i urządzenia elektroenergetyczne (stację transformatorową).
-
Stosownie do potrzeb, dopuszcza się lokalizację innych urządzeń infrastruktury technicznej.
Rozdział 3
ROZGRANICZENIE TERENÓW i ZASADY PARCELACJI
§ 8. Przebieg linii rozgraniczających (linii ciągłych), do celów opracowań geodezyjnych należy określić poprzez odczyt graficzny osi linii na rysunku planu.
§ 9. W granicach terenów oznaczonych na rysunku planu symbolami 1.MJ i 2.MJ dopuszcza się wtórny podział nieruchomości, pod warunkiem zapewnienia dla każdej z wyodrębnionych działek budowlanych :
-
minimalnej powierzchni nie mniejszej niż 1.000 m2,
-
dostępności do drogi publicznej lub wewnętrznej (dojazdu i dojścia).
Rozdział 4
ZASADY OBSŁUGI KOMUNIKACYJNEJ
§ 10. Układ komunikacyjny obejmuje niżej wymienione drogi publiczne i drogi wewnętrzne oznaczone w planie symbolami :
-
1.KUl - droga publiczna jako ulica lokalna w ciągu drogi powiatowej na odcinku 240 m; szerokość w liniach rozgraniczających 13,5 m; istniejąca jezdnia z planowanym poszerzeniem jej szerokości do 5,5 m; dwustronny chodnik; jednostronna ścieżka rowerowa;
-
2.KUd - droga publiczna (gminna) jako ulica dojazdowa na odcinku 120 m (w stanie istniejącym - droga gruntowa); szerokość w liniach rozgraniczających 10 m; szerokość jezdni 5 m; dwustronny chodnik; jednostronna ścieżka rowerowa;
-
3.KUd - droga publiczna (gminna) jako ulica dojazdowa na odcinku 145 m (w stanie istniejącym - droga gruntowa); szerokość w liniach rozgraniczających 12,5 m; szerokość jezdni 5 m; zatoka parkingowa; dwustronny chodnik; jednostronna ścieżka rowerowa;
-
4.KPs - droga wewnętrzna jako ciąg pieszojezdny na odcinku 75 m (planowana); szerokość w liniach rozgraniczających - 6 m; szerokość pasa ruchu samochodowego - 3 m;
-
5.KPs - droga publiczna (gminna) jako ciąg pieszojezdny (wyjazd indywidualny) na odcinku 85 m (w stanie istniejącym - droga gruntowa), szerokość w liniach rozgraniczających - 8,5 m; szerokość pasa ruchu samochodowego - 3 m; zatoka parkingowa;
-
6.KPs - droga wewnętrzna jako ciąg pieszojezdny na odcinku 90 m (planowana); szerokość w liniach rozgraniczających - 6 m, szerokość pasa ruchu samochodowego - 3 m.
§ 11. Wprowadza się zasadę obsługi komunikacyjnej poszczególnych działek budowlanych wyłącznie z ulic dojazdowych oznaczonych w planie symbolami KUd i z wyjazdów indywidualnych (ciągów pieszojezdnych) oznaczonych w planie symbolami KPs.
Rozdział 5
ZASADY OBSŁUGI INŻYNIERYJNEJ
§ 12.
-
Zaopatrzenie w wodę na cele bytowe - z istniejącej i rozbudowanej komunalnej sieci wodociągowej.
-
Niezależnie od zaopatrzenia w wodę z sieci, należy przewidzieć zaopatrzenie z awaryjnych studni publicznych - zgodnie z przepisami szczególnymi.
-
Zaopatrzenie w wodę na cele przeciwpożarowe - z hydrantów ulicznych naziemnych montowanych na komunalnej sieci wodociągowej.
§ 13.
-
Odprowadzenie ścieków bytowych - docelowo do planowanej komunalnej sieci kanalizacji ściekowej.
-
Do czasu realizacji komunalnej sieci kanalizacji ściekowej, dopuszcza się odprowadzenie ścieków bytowych do indywidualnych, szczelnych zbiorników bezodpływowych.
§ 14.
-
Odprowadzenie wód opadowych - docelowo do planowanej komunalnej sieci kanalizacji deszczowej wyposażonej w separator substancji ropopochodnych.
-
Do czasu realizacji komunalnej sieci kanalizacji deszczowej dopuszcza się odprowadzenie wód opadowych :
-
z dachów obiektów - na tereny nieutwardzone w granicach działek budowlanych,
-
z parkingów - do gruntu poprzez studzienki z wkładem zabezpieczającym przed przenikaniem substancji ropopochodnych.
§ 15. Do zaopatrzenia w energię cieplną do celów bytowych i grzewczych należy wykorzystać gaz bezprzewodowy lub inne indywidualne źródła.
§ 16.
-
Nową stację transformatorową, jako obiekt wolno stojący, należy sytuować na terenie oznaczonym w planie symbolem 5.ZI/TE.
-
Zasilanie w energię elektryczną stacji transformatorowej i innych obiektów - z istniejącej i rozbudowanej kablowej sieci elektroenergetycznej 15 kV i 0.4 kV.
§ 17. Wskazuje się do przebudowy istniejącą nadziemną i podziemną infrastrukturę techniczną kolidującą z ustaleniami niniejszego planu.
Rozdział 6
OCHRONA ŚRODOWISKA PRZYRODNICZEGO
§ 18.
-
Gromadzenie i usuwanie odpadów komunalnych powinno być oparte o obowiązujące w gminie system z uwzględnieniem selektywnej gospodarki odpadami.
-
Wprowadza się zakaz prowadzenia działalności skutkującej powstawaniem ścieków technologicznych i odpadów kwalifikowanych jako niebezpieczne, z wyłączeniem odpadów typu medycznego gromadzonych i usuwanych zgodnie z obowiązującymi w tym zakresie przepisami szczególnymi.
§ 19. Zbędne masy ziemne powstające w czasie realizacji inwestycji należy przetransportować w miejsce wskazane przez burmistrza lub wykorzystać do nowego ukształtowania terenu w granicach działki budowlanej.
Rozdział 7
ZMIANA PRZEZNACZENIA GRUNTÓW ROLNYCH
§ 20.
-
Na cele nierolnicze przeznacza się użytki rolne pochodzenia mineralnego o łącznej powierzchni - 1,9054 ha, w tym :
-
klasy R-IIIb o powierzchni 0,25 ha;
-
klasy R-IVa o powierzchni 0,6601 ha;
-
klasy R-V o powierzchni 0,7616 ha;
-
klasy R-VI o powierzchni 0,1911 ha;
-
klasy S-R-VI o powierzchni 0,0426 ha;
-
Wyłączenie gruntów z produkcji rolniczej nastąpi na cele określone w § 2 ust. 3 niniejszej uchwały oraz na cele komunikacyjne.
Rozdział 8
STAWKA PROCENTOWA SŁUŻĄCA NALICZENIU OPŁATY PLANISTYCZNEJ
§ 21. Wysokość jednorazowej opłaty, pobieranej przez burmistrza przy zbyciu nieruchomości, której wartość wzrosła w związku ze zmianą w planie zagospodarowania przestrzennego, ustala się na :
-
10 % wzrostu wartości nieruchomości dla terenów oznaczonych symbolami 1.MJ, 3.MJ/UC i 4.MJ;
-
30 % wzrostu wartości nieruchomości dla terenu oznaczonego symbolem 2.MJ.
Rozdział 9
USTALENIA KOŃCOWE
§ 22. Na obszarze zmiany w planie, o której mowa w § 2 niniejszej uchwały, tracą moc ustalenia planu ogólnego zagospodarowania przestrzennego miasta i gminy Gryfino zatwierdzonego uchwałą Nr XIII/90/90 Rady Narodowej w Gryfinie z dnia 24.04.1990 r. (publikowaną w Dzienniku Urzędowym Województwa Szczecińskiego nr 14 poz. 204 1990 r. i nr 13, poz. 148 z 1992 r.) wraz z późniejszymi zmianami
§ 23. Wykonanie uchwały powierza się Burmistrzowi Miasta i Gminy Gryfino.
§ 24. Uchwała wchodzi w życie po upływie 14 dni od daty ogłoszenia w Dzienniku Urzędowym Województwa Zachodniopomorskiego.
PRZEWODNICZĄCY RADY
Jan Ragan
Uzasadnienie
do uchwały w sprawie uchwalenia zmiany w planie ogólnym zagospodarowania przestrzennego miasta i gminy Gryfino - w miejscowości Wirów
Uchwalenie zmiany w planie ogólnym zagospodarowania przestrzennego gminy Gryfino - w miejscowości Wirów następuje w konsekwencji procedury przeprowadzonej na koszt właścicieli działek objętych opracowaniem.
Wprowadzenie zmiany w planie pozwoli na inwestowanie właścicielom terenów w sposób, o który wnioskowali na etapie przystępowania do zmiany w planie.
Zgodnie ze „Studium uwarunkowań i kierunków rozwoju przestrzennego gminy" przedmiotowy teren położony jest w granicach, dla którego należy opracować miejscowy plan zagospodarowania przestrzennego.
Na etapie wyłożenia projektu zmiany w planie do publicznego wglądu nie wpłynęły żadne protesty i zarzuty, a procedura została przeprowadzona z zachowaniem terminów przewidzianych w ustawie.
W świetle powyższego uzasadnionym wydaje się uchwalenie zmiany w planie.
|