UCHWAŁY MPZP
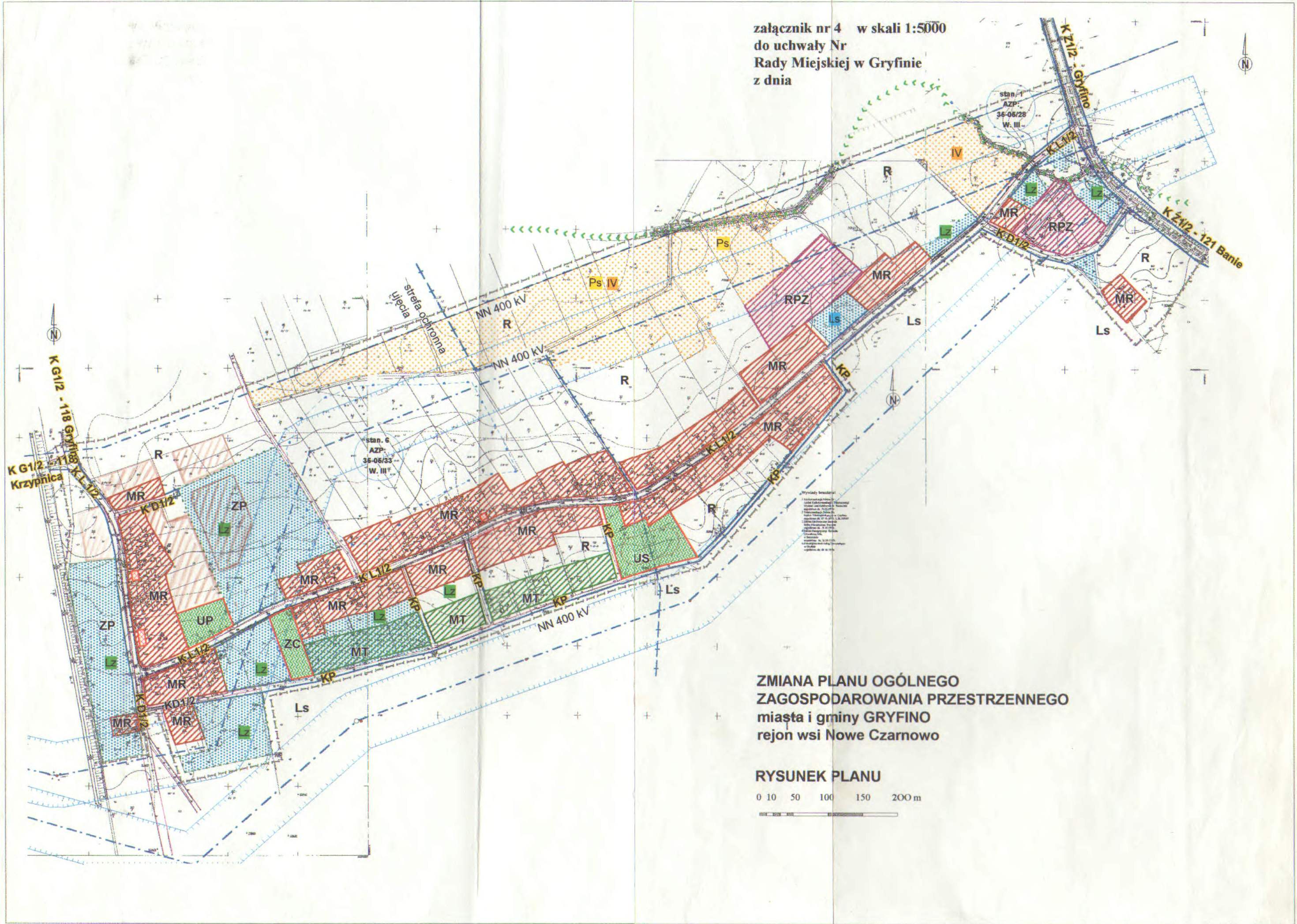
UCHWAŁA Nr XX/266/2000 Rady Miejskiej w Gryfinie z dnia 29 czerwca 2000r. w sprawie uchwalenia zmiany planu ogólnego zagospodarowania przestrzen¬nego miasta i gminy Gryfino - rejon wsi Krajnik, Krzypnica, Nowe Czarnowo
| Lista załączników: | |
|---|---|
| 01 Uchwała Nr XX/266/00 - format pdf [203862 bajtów] | |
| 02 Załącznik Nr 1 do Uchwały [836789 bajtów] | |
| 03 Załącznik Nr 2 do Uchwały [860922 bajtów] | |
| 04 Załącznik Nr 3 do Uchwały [1237233 bajtów] | |
| 05 Załącznik Nr 4 do Uchwały [576372 bajtów] | |